Objektbeschreibung

Im Stutenseer Stadtteil Blankenloch hat die Volkswohnung GmbH ein neues, attraktives Wohngebiet geschaffen. Auf dem Gelände des alten Hallenbads und einer angrenzenden ehemaligen Gewerbefläche sind ca. 150 Wohnungen zur Miete und zum Kauf – für alle Generationen und Lebensformen – mit hoher Aufenthaltsqualität und ökologischem Mehrwert entstanden. Darüber hinaus steht auch eine Gewerbefläche im Erdgeschoss zur Verfügung.

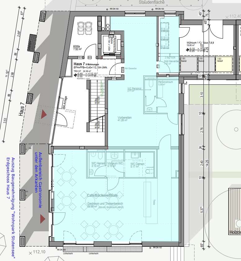
Der ebenerdige Zugang in die Gewerbefläche ist durch die zwei breiten Eingangstüren bequem erreichbar. Nach derzeitiger Planung beträgt die Gesamtfläche ca. 136 m². Die Fläche unterteilt sich in Gastraum und Thekenbereich, Vorbereitungs- und Küchenbereich sowie Sanitärbereiche für Kundinnen und Kunden, sowie Personal.

Eine Lagerfläche steht im Untergeschoss mit ca. 26 m² zur Verfügung.

Ein 360°-Rundgang finden Sie unter folgendem Link: https://tour.feelestate.com/view/is24/id/VZFDM/p/162a265c2e19a44321fb319cbd25850217216138

Ausstattung

Durch die ca. 7 m lange Fensterfront ist gute Einsehbarkeit geboten. Sie kann als attraktive Werbefläche dienen.

Die Einheit kann als Café oder Bistrobetrieb genutzt werden. Die Außenfläche vor der Gewerbezeile von ca. 200 m² kann zusätzlich für eine Bestuhlung genutzt werden.

Der Grundriss kann – soweit baulich realisierbar – anders aufgeteilt werden. In der Planungsphase gehen wir gemeinsam mit Ihnen die gewünschten Ausstattungsdetails Ihrer Gewerbefläche durch.

Für die Gewerbeeinheit sind zwei oberirdische (je 50,00 €/Monat) und ein Stellplatz in der Tiefgarage (75,00 €/Monat) vorgesehen.

Lage

Die große Kreisstadt Stutensee mit insgesamt ca. 24.500 Einwohnerinnen und Einwohnern liegt verkehrsgünstig zwischen Karlsruhe und Bruchsal und ist in vier Stadtteile aufgeteilt: Blankenloch (einschließlich Büchig), Friedrichstal, Spöck und Staffort. Stutensee ist ein gefragter Wohn- und Gewerbestandort mit einer dynamischen Entwicklung. Die angebotene Gewerbeeinheit befindet sich im Stadtteil Blankenloch. In der unmittelbaren Nachbarschaft sind viele Geschäfte, Dienstleistungsunternehmen und Behörden angesiedelt. Autobahnanschlüsse (A5/A6/A8) sind in unmittelbarer Nähe und auch der Stadtbahnanschluss des Karlsruher Verkehrsverbunds (S2) sichert eine schnelle Anbindung für Berufspendler:innen.

Sophie-Scholl-Straße 22
76297 Stutensee